Skip to content

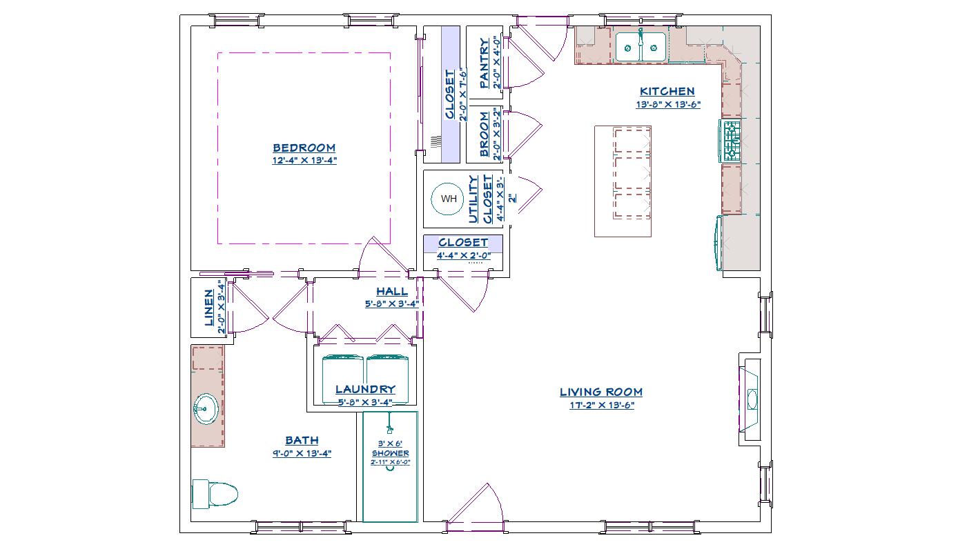
Plan 251204

Modern Farmhouse, Ranch, Carriage House / ADU

  • Square footage896 sq ft
  • Bedrooms1
  • Bathrooms1
  • Stories1
  • Garage stalls0
  • Width32′ 0″
  • Depth28′ 0″

One story ranch ADU with 1 bedroom and 1 bathroom.

Base plan price: $672.00

Pricing is for the plan as shown. Any modifications will be quoted separately and charged in addition to the base plan price.

Get Started

Request changes to this plan

Describe what you’d like to change. We’ll email your note along with the plan #. Changes are in addition to the base price shown.