Skip to content

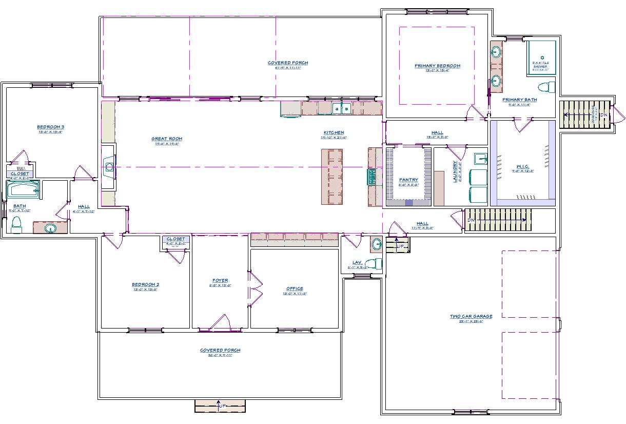
Plan 240506

Ranch

  • Square footage2,586 sq ft
  • Bedrooms3
  • Bathrooms2.5
  • Stories1
  • Garage stalls2
  • Width90′ 9″
  • Depth60′ 0″

One story 2,586 sq/ft ranch with 3 bedrooms and 2.5 bathrooms.

Base plan price: $1,293.00

Request changes to this plan

Describe what you’d like to change. We’ll email your note along with the plan #. Changes are in addition to the base price shown.