Skip to content

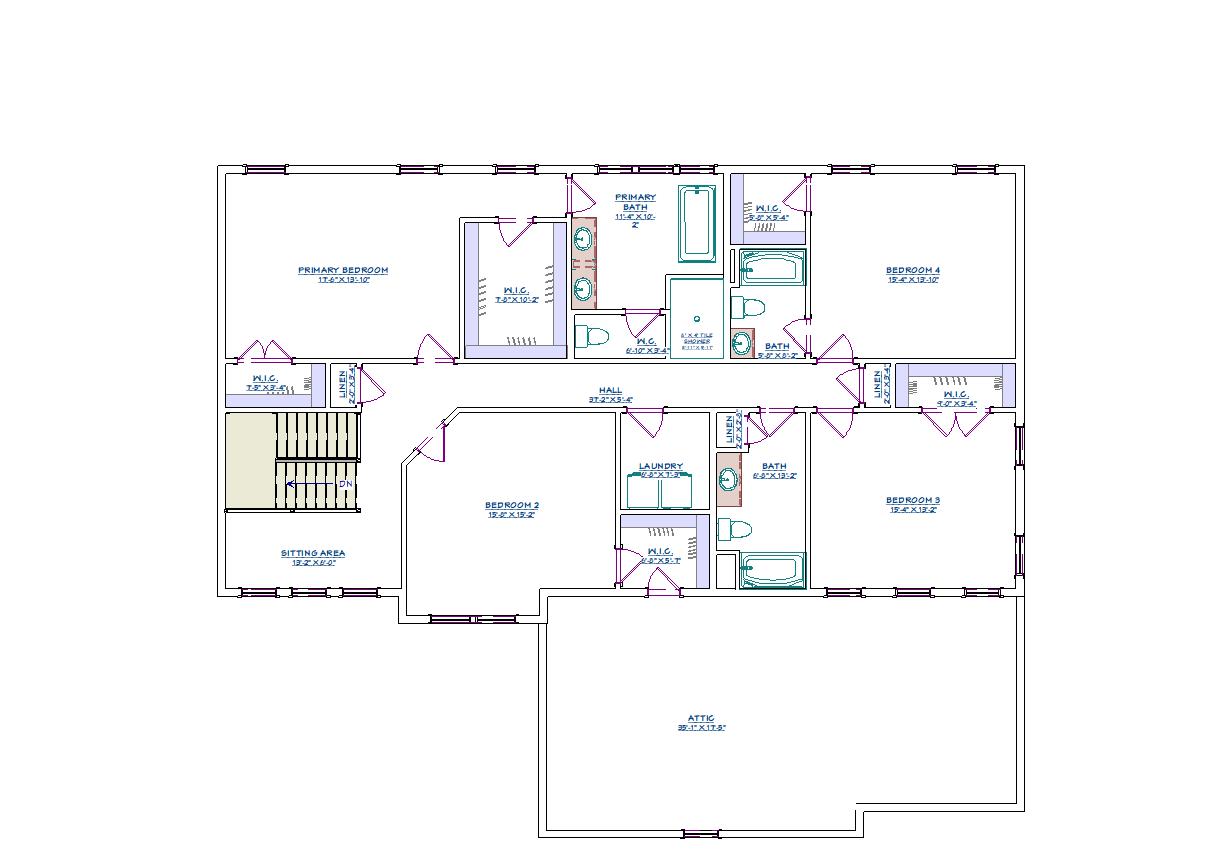
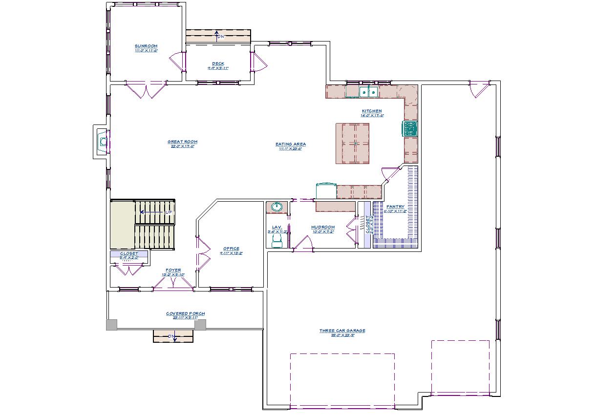
Plan 240507

Modern Farmhouse

  • Square footage3,553 sq ft
  • Bedrooms4
  • Bathrooms3.5
  • Stories2
  • Garage stalls3
  • Width62′ 0″
  • Depth62′ 0″

Two story 3,553 sq/ft modern farmhouse with 4 bedrooms and 3.5 bathrooms.

Base plan price: $1,776.50

Request changes to this plan

Describe what you’d like to change. We’ll email your note along with the plan #. Changes are in addition to the base price shown.