Skip to content

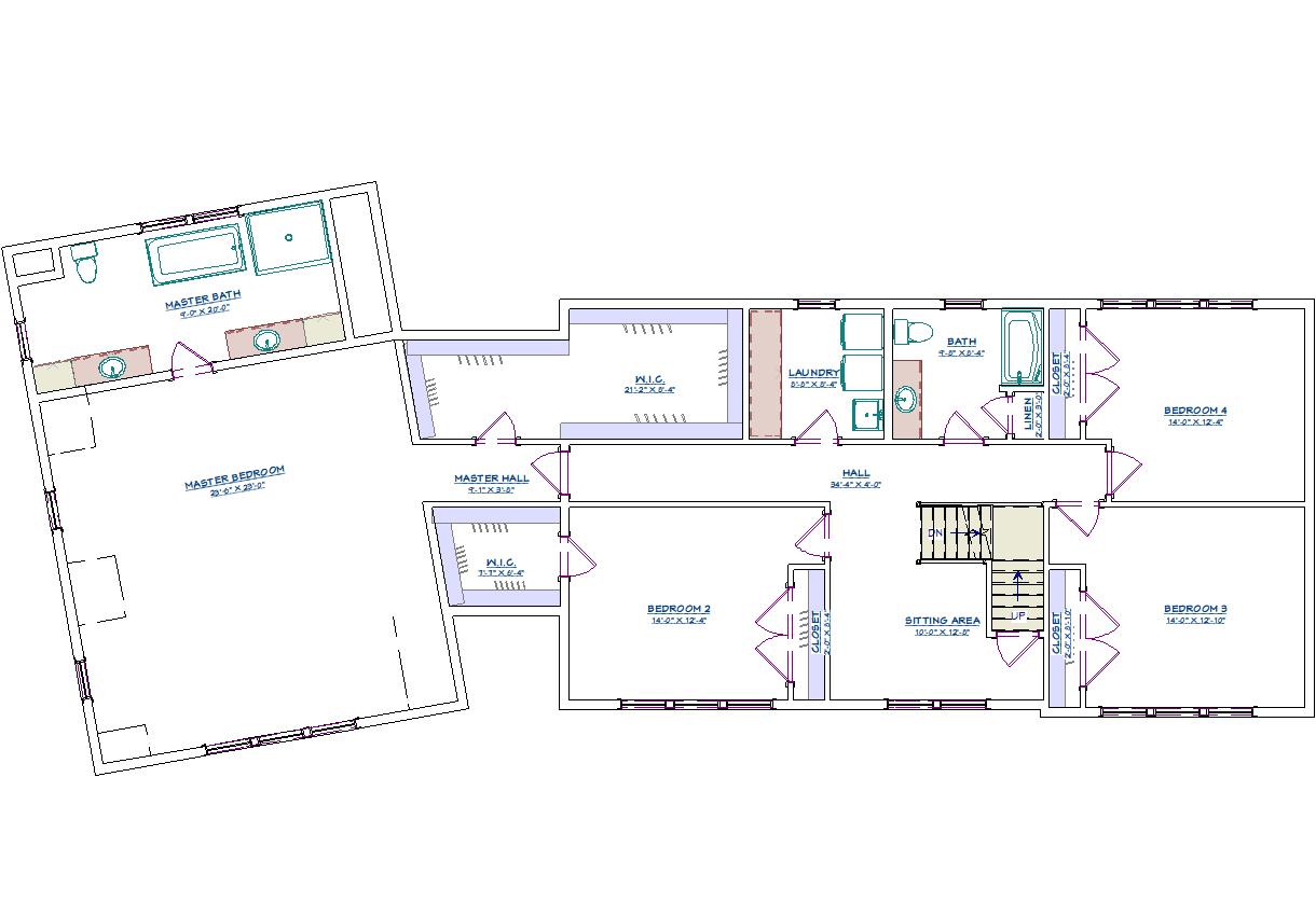
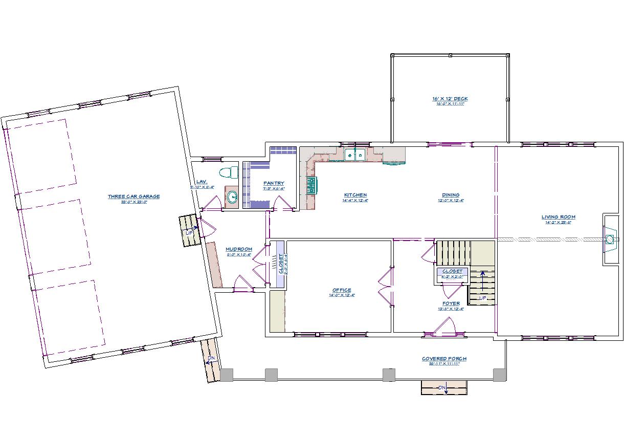
Plan 240403

Colonial, Modern Farmhouse

  • Square footage3,614 sq ft
  • Bedrooms4
  • Bathrooms2.5
  • Stories2
  • Garage stalls3
  • Width83′ 6″
  • Depth39′ 6″

Two story 3,614 sq/ft colonial with 4 bedrooms and 2.5 bathrooms.

Base plan price: $1,807.00

Pricing is for the plan as shown. Any modifications will be quoted separately and charged in addition to the base plan price.

Get Started

Request changes to this plan

Describe what you’d like to change. We’ll email your note along with the plan #. Changes are in addition to the base price shown.