Skip to content

Plan 240303

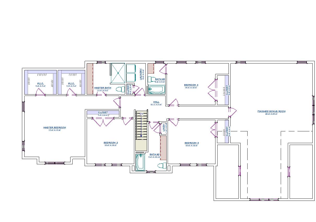
Colonial

  • Square footage4,322 sq ft
  • Bedrooms4
  • Bathrooms3.5
  • Stories2
  • Garage stalls3
  • Width90′ 6″
  • Depth48′ 6″

Two story 4,322 sq/ft colonial with 4 bedrooms and 3.5 bathrooms.

Base plan price: $2,161.00

Pricing is for the plan as shown. Any modifications will be quoted separately and charged in addition to the base plan price.

Get Started

Request changes to this plan

Describe what you’d like to change. We’ll email your note along with the plan #. Changes are in addition to the base price shown.